Ваш город:
Асбест
Ваш город Асбест?
Да Выбрать другой
Заказать звонок
Фильтр

Цилиндро-червячные редукторы Ц2Ч-200, Ц2Ч-250, Ц2Ч-320, Ц2Ч-400

Описание

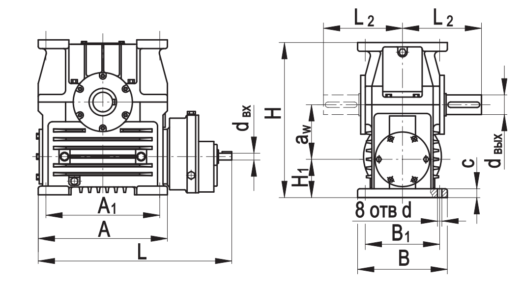
Габаритные размеры редуктора на лапах

Типоразмер Размеры, мм
aw А А1 В B1 L L1max L2 Н H1 c d dвх dвых
Ц2Ч-200 200 475 420 330 275 786 1026 340 575 160 32 24 45 80
Ц2Ч-250 250 590 520 410 340 982 1283 365 710 175 40 28 55 90
Ц2Ч-320 320 690 560 416 245 1257 1642 468 835 170 70 30 70 120
Ц2Ч-400 400 750 605 585 510 1572 2052 540 1090 260 85 39 90 160

* Размеры приведены без учёта длины резьбового конца вала исполнения К2. 

 

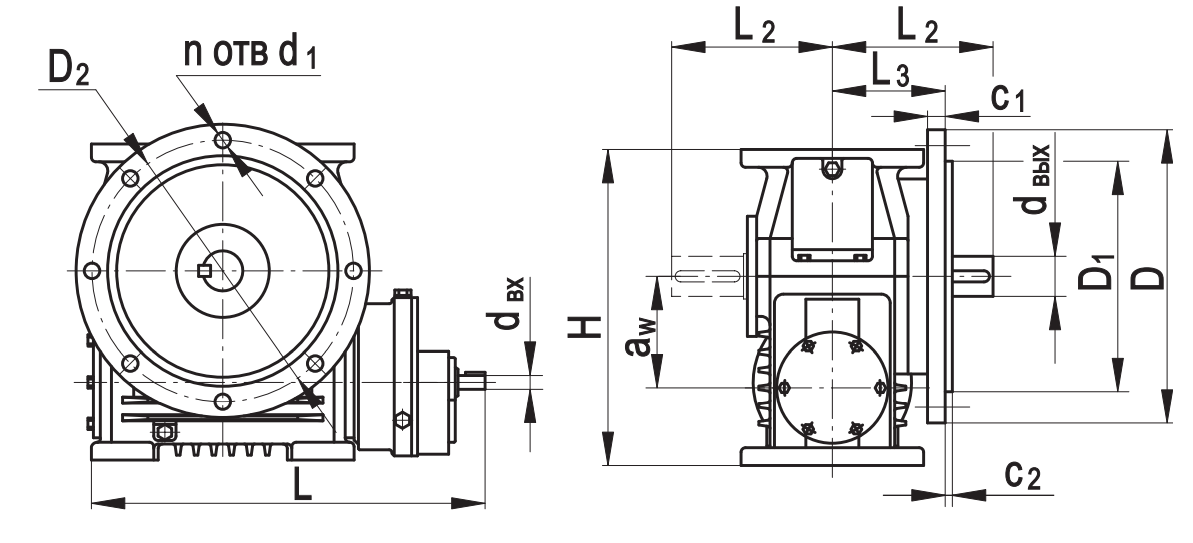
Габаритные размеры редуктора на фланце

Типоразмер Размеры, мм n
aw D D1 D2 Н L L1max L2 L3 c1 с2 d1 dвх dвых
Ц2ЧФ-200 200 530 410 470 575 786 1026 340 205 30 5 24 45 80 8
Ц2ЧФ-250 250 660 515 585 710 982 1283 365 255 35 6 28 55 90 8
Ц2ЧФ-320 320 840 660 750 835 1257 1642 468 325 40 6 30 70 120 8
Ц2ЧФ-400 400 1050 820 940 1090 1572 2052 540 405 45 6 33 90 160 8

* Размеры приведены без учёта длины резьбового конца вала исполнения К2. 

Варианты сборки

Варианты расположения червячных передач

1. Червячный вал под колесом;
2. Червячный вал над колесом;
3. 4. Вал червячного колеса вертикальный;
5. 6. Червячный вал вертикальный.

Назад
Выбор города